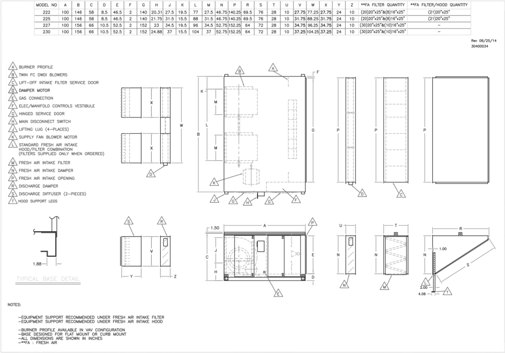
222 to 230 -- Arrangement H4 Horizontal Discharge