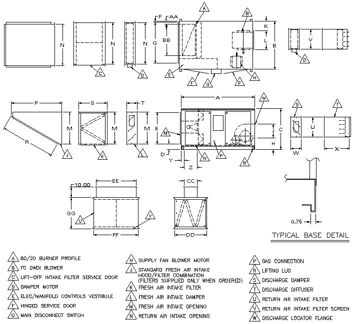
12M & 15M -- Arrangement H1 Horizontal Discharge

A B C D E F G H J K L M N P
70 46 38 5.5 30 1 39.25 10.5 18.75 8.5 18.75 30.25 39.5 48
R S T U V W X Y Z AA BB
51.66 27 10 19 19 10 24 4.5 11.5 4.5 29.5
CC DD EE FF GG FA Filter Qty FA Filter / Hood Qty RA Filter Qty
11.75 24.25 29.75 39.5 30 (4) 20 x 25 (4) 20 x 25 (4) 20 x 25