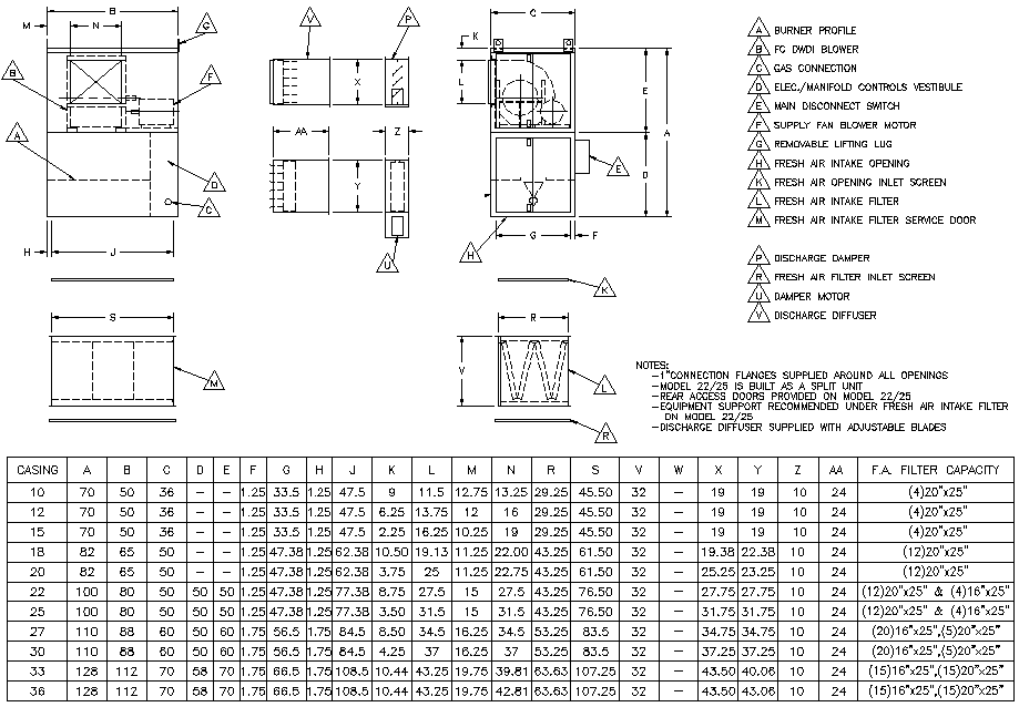
V3 Vertical Unit with Left Side Discharge