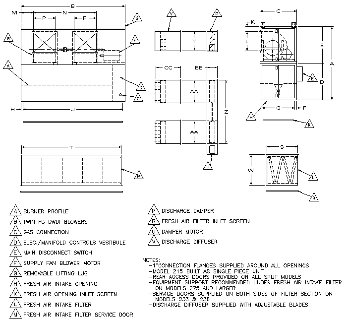
| V3 Vertical Unit with Left Side Discharge |
|
|
|
| Casing |
A |
B |
C |
D |
E |
F |
G |
H |
J |
K |
L |
M |
N |
| 222 |
100 |
146 |
50 |
50 |
50 |
1.25 |
47.38 |
1.25 |
143.38 |
8.75 |
27.25 |
14.75 |
77.00 |
| 225 |
100 |
146 |
50 |
50 |
50 |
1.25 |
47.38 |
1.25 |
143.38 |
3.5 |
31.50 |
14.75 |
88.00 |
| 227 |
110 |
156 |
60 |
50 |
60 |
1.75 |
56.5 |
1.75 |
152.5 |
9 |
34.5 |
16.25 |
96 |
| 230 |
110 |
156 |
60 |
50 |
60 |
1.75 |
56.5 |
1.75 |
152.5 |
4.5 |
37 |
16.25 |
104 |
| 233 |
128 |
191 |
70 |
58 |
70 |
1.75 |
66.50 |
1.75 |
187.50 |
10.50 |
43.25 |
19.75 |
116.00 |
| 236 |
128 |
191 |
70 |
58 |
70 |
1.75 |
66.50 |
1.75 |
187.50 |
10.50 |
43.25 |
19.75 |
122.00 |
|
| Casing |
P |
S |
T |
W |
X |
Y |
Z |
AA |
BB |
CC |
FA Filter Capacity |
| 222 |
27.00 |
43.25 |
142.50 |
32 |
- |
27.75 |
77.25 |
27.25 |
10 |
24 |
(16) 20 x 25 & (16) 16 x 25 |
| 225 |
31.50 |
43.25 |
142.50 |
32 |
- |
31.75 |
88.25 |
31.75 |
10 |
24 |
(16) 20 x 25 & (16) 16 x 25 |
| 227 |
34.5 |
53.25 |
151.5 |
32 |
- |
34.75 |
96.25 |
34.75 |
10 |
24 |
(30) 20 x 25 & (10) 16 x 25 |
| 230 |
37 |
53.25 |
151.5 |
32 |
- |
37.25 |
104.25 |
37.25 |
10 |
24 |
(30) 20 x 25 & (10) 16 x 25 |
| 233 |
39.81 |
63.63 |
186.13 |
32 |
- |
43.50 |
116.25 |
40.06 |
10 |
24 |
(20) 16 x 25 & (30) 20 x 25 |
| 236 |
42.81 |
63.63 |
186.13 |
32 |
- |
43.50 |
122.25 |
43.06 |
10 |
24 |
(20) 16 x 25 & (30) 20 x 25 |
|